欢迎来到WBV温宝阀门有限公司官方网站 E-mail:sales@wbvaIve.com
Select :
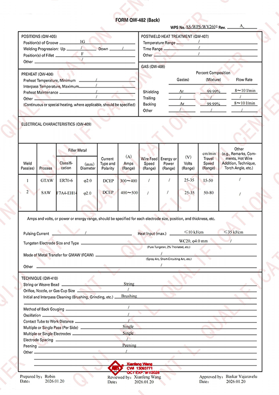
您当前的位置:首页 / 资质证书 / AS-WPS-WV2601
上一条:资质证书
下一条:TSX71005820240071
相关信息
营业执照
商标注册证
开户基本信息
特种设备生产许可证
如果您有任何产品上的问题及建议,或您想知道的,您可以随时与我们联系。
产品中心
联系我们